Sign permit drawings that help you move forward



We provide clean, organized sign drawings that meet the expectations of engineers and city reviewers. Our files are structured to make the next steps—landlord approvals engineering, permit applications, —faster and easier.

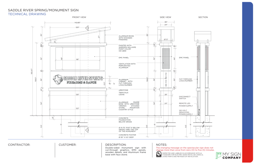
Every city has different permitting requirements—so we rely on you to provide the exact documentation and codes needed for your location. Our team will then prepare clear, structured drawings to support your application process.
Our permit drawing service is built to support your permitting and engineering process, but it’s not a substitute for it.
We design drawings based on the information you provide, especially local sign codes and project requirements. Our team does not perform code research or site surveys.
We are not licensed engineers, so our drawings are not stamped. However, we use specialized software for monument and pylon signs only to generate wind load and structural assumptions based on the installation address. These tools help streamline the work of your engineer and make final approvals easier.









By saving overhead costs and adding capabilities
Create incredible design work with our experienced experts
Grow your business and explore new markets with no headcount
Grow your business and explore new markets with no headcount

Explore our enterprise plans
With Enterprise support, your pre-production files are always on point—delivered by a team that understands materials, methods, and your shop’s workflow.
We use cookies to make your experience better. You can manage your preferences anytime.